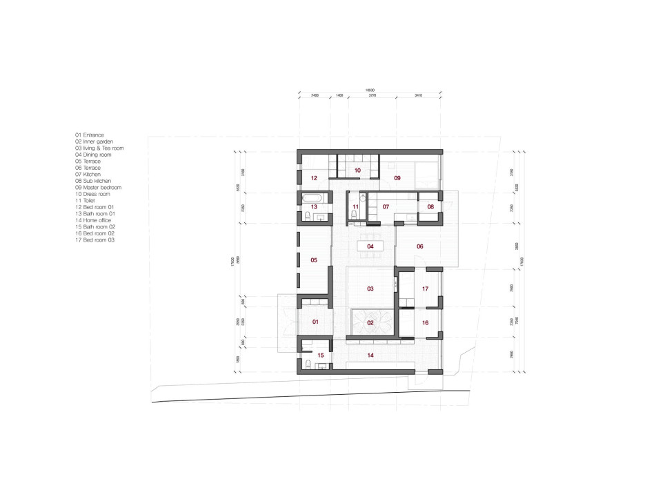
프로젝트 우주재, 제ㅣ백에이어소시에이츠 집이라는 공간을 접할 때 마다 흥미로운 것은 불특정 다수가 아닌 특정한 사람만을 위한 공간이라는 점과 그 사람을 탐구하는 과정이 아닐까 생각한다. 이 프로젝트 또한 한 가족의 소소한 이야기들과 그들의 생활방식, 그리고 그들이 삶을 대하는 태도 등을 이해하는 과정을 거치며 설계가 되었다. Keywords 100Aassociates 100A 백에이어소시에이츠 백에이 안광일건축가 박솔하건축가 WUJUJAE JE 우주재 제 넉넉함이머무르는집 특정한사람만을위한공간 한가족의소소한이야기 삶의방식 삶을대하는태도 원경과근경에따라동향배치 중정 한자를기준으로설계 실의치수와문의치수 여백 변화하는창밖풍경 빛과그림자의변화 아름다운공간 ‘우주재’라는 이름은 처음 건축주 가족과 다 같이 만나는 자리에서 건축주 자매가 집을 짓고 싶은 이유와 집에 담고 싶은 것들, 그리고 이 집의 의미를 담은 이름을 미리 준비해와서 설명해 주셨는데 건축주 가족이 지어온 이름이 넉넉함이 머무르는 집 ‘우주재’였다. 참 인상 깊은 단어였다. 그래서 우리는 그 이름으로부터 공간에 대한 생각을 시작하였고, 수많은 질문과 대답을 통해서 그들의 삶의 방식과 삶을 대하는 태도 그리고 한국적인 공간에서 그 연결고리를 찾아 설계를 했다. 건축의 배치는 원경과 근경(자연을 사유하는 방법)에 따라 동향으로 배치하되 항상 빛이 머물 수 있도록 중정을 두었다. 평면은 길이의 단계인 한 자를 기준으로 설계하였고, 이 한 자의 길이는 각 실의 치수와 문의 치수 등 소소한 곳에도 적용하였다. 그리고 디자인을 하는데 있어서 가장 중요하게 생각했던 것은 여백이었는데, 사계절에 따라서 아침과 저녁에 따라서 계속해서 변화하는 창 밖 풍경과 빛과 그림자의 변화만으로도 충분이 아름다운 공간이 되었으면 하는 바람이었다. 건축주 가족으로부터 종종 연락을 받는다. 겨울에는 눈 소복히 쌓인 마당에 만들어 둔 눈사람 사진을, 봄에는 손수 가꾸시는 뒷 마당에 활짝 핀 꽃들의 사진을 찍어 보여주시기도 한다. 그리고 어느 날에는 중정에 그림처럼 걸려있던 보름달과 보름달 빛을 가득 담은 집 안의 분위기를 설렘 가득한 목소리로 전달해 주신다. 우리가 생각지도 못했던 공간의 아름다움을 하나하나 느끼고 공유해주시는 건축주 가족에게 감사하는 마음을 전한다.遇宙在, 齋 우주재, 제ㅣ100A associates 2017 위 치 | 경기 광주시 오포읍 신현리 Gwangju-si, Gyeonggi-do면 적 | 165㎡외 벽 | 벽돌 마감바 닥 | 타일, 우드플로링 마감벽 | 한지, 도장 마감천 정 | 한지, 도장 마감설계ㆍ시공 | 백에이어소시에이츠 100A associates대표 건축가 | 안광일 Kwangil An, 박솔하 Solha Park글 | 백에이어소시에이츠 100A associates사진 | 김재윤 Jaeyoun Kim