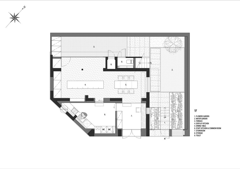
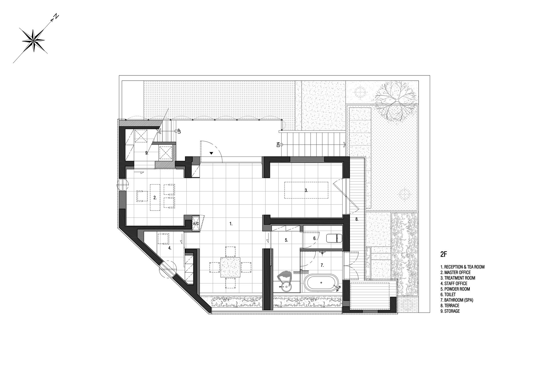
프로젝트 향심재ㅣ백에이어소시에이츠 향심재의원은 대구에 위치한 가정의학과와 피부과가 결합된 형태의 의원으로 기존의 의원 혹은 병원의 일반적인 형태와는 다른 진보적인 서비스를 제공하는 130평방미터의 공간이다. 우리는 클라이언트가 이 공간에서 이루어 나가고자 하는 생각과 목표 혹은 미래에 대하여 대화하고 공유함으로서 공간 디자인의 개념들을 순차적으로 구축해 나갔다. 클라이언트는 이 공간을 찾아오는 사용자들에게 단순한 진료의 프로그램이 아닌 개별적, 지속적, 포괄적 진료를 목표에 두었고 이를 위해서 그들과 친밀감, 신뢰, 대화의 공간을 필요로 했다. 이는 단순하게 외치에만 집중하는 것이 아닌 질병의 예방과 보기의 발견, 의사와 환자의 친밀한 관계를 통한 심리치료를 병행함으로서 ‘주치의’로서 환자의 외치와 내치 모두 집중하기 위함이다. 이러한 서비스를 제공하기 위해 여러 사람의 접근성을 제한하고 공간에 머무르는 사용자의 수를 제한한 사유 공간의 분위기를 조성하여 휴식과 치유의 공간으로 구축했다. 또한 소수의 사용자들이 공간에 머무는 시간동안 충분한 휴식과 빛 등의 자연요소를 사유할 수 있도록 편안하고 친밀함을 유도하는 운영 프로그램에 대해 고민했다. Keywords 100Aassociates 100A 백에이어소시에이츠 백에이 안광일건축가 박솔하건축가 HYANGSIMJAE CLINIC 향심재 향심재의원 대구 진보적인서비스 개별적지속적포괄적진료 친밀감신뢰대화의공간 사유공간 휴식치유의공간 자연요소 투박하고검박한외관 수작업으로가공 예술적인질감 금속과유리 도시성반영 시간의분위기 부엌 의사의마음을먼저보이는공간 나누고싶은것들로채워진공간 건강한식사 대접하는집 사유공간 진정한치유와휴식을경험 우리는 외관을 디자인하면서 혼란스러운 도시와 대조적인 태도로 투박하고 검박한 외관을 만들고자 했는데 이 투박한 질감을 위해 수작업으로 가공하여 예술적인 질감을 얻을 수 있었다. 투박한 질감에서 디테일한 소재로 적용된 금속과 유리의 선택은 도시성을 반영한다. 굳게 닫힌 대문을 열고 아주 천천히 정원을 따라 공간으로 진입하는 동선을 계획했는데, 처음 마주하게 되는 정원은 빛뿐만 아니라 자연, 날씨, 시간의 흐름과 같은 ‘시간의 분위기’를 담은 공간이다. 이 ‘시간의 분위기’는 혼란스런 도시와 대조되는 분위기의 연속성으로 진정한 휴식과 여유 그리고 환영을 의미한다. 또한 동선을 계획하면서 공간에 들어설 때 향심재의원의 특별함을 가장 먼저 볼 수 있는 곳에 배치하는 것을 중요하게 생각했다. 그렇게 우리가 공간에서 가장 먼저 볼 수 있도록 배치한 것은 ‘부엌’이다. 재미있는 의원이지 않은가. 공간 초입에 부엌이 보이는 의원이라는 것이! 이에 대한 이야기는 클라이언트가 의원을 운영하고자 하는 철학에서 비롯되었다. 하얀 가운을 입고 작은 책상에서 환자의 얼굴을 흘깃 한번 보고 빠르게 진료가 끝나는 것이 아닌, 앞치마를 두르고 차 혹은 커피 한 잔 가끔 직접 구워내는 쿠키나 빵을 곁들이면서 의사와 환자가 아닌 서로 눈을 맞추고 안색을 살피며 사람과 사람과의 대화를 하기 위해서이다. 때로는 그들을 위해 간단한 식사를 대접하기도 하고 그들이 스스로 건강한 식사를 할 수 있도록 식자재나 음식을 만드는 방법을 교육하기도 한다. 향심재의원의 ‘부엌’은 이곳을 찾는 이들과 마음을 나누기 위해서 의사의 마음을 먼저 보이는 공간으로 그가 좋아하는 것. 아름답다고 생각하는 것, 나누고 싶은 것들로 채워진 공간이다. 치료에 집중하기 위한 공간은 기존의 고전적인 요소가 필요하지만 이를 간결하고 최소한으로 구성, 곳곳에서 의사의 정원과 마음을 볼 수 있게 함으로서 고전적인 분위기가 아닌 그의 사유공간에서 진정한 치유와 휴식을 경험할 수 있도록 했다. 돌이켜 생각해 보니 클라이언트와 우리는 이 공간을 담담하게 만들어 나갔던 것 같다. 그럼에도 불구하고 이 공간을 독특하게 만드는 점은 향심재의원의 이름처럼 마음을 다해 생각하고 대접하는 집(鄕心.齋)이기 때문이다.향심재 HYANGSIMJAE CLINICㅣ100A associates 2020위 치 | 대구광역시 수성구 만촌동 Suseong-gu, Daegu면 적 | 130㎡외 벽 | 볏집, 칼라서스, 타일 철거면, 테라코사하라 마감바 닥 | 콩자갈, 타일 마감벽 | 도장, 한지벽지 마감천 정 | 도장 마감창 호 | 현장 제작설계ㆍ시공 | 백에이어소시에이츠 100A associates대표 건축가 | 안광일 Kwangil An, 박솔하 Solha Park글 | 백에이어소시에이츠 100A associates사진 | 김재윤 Jaeyoun Kim