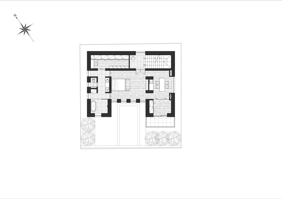
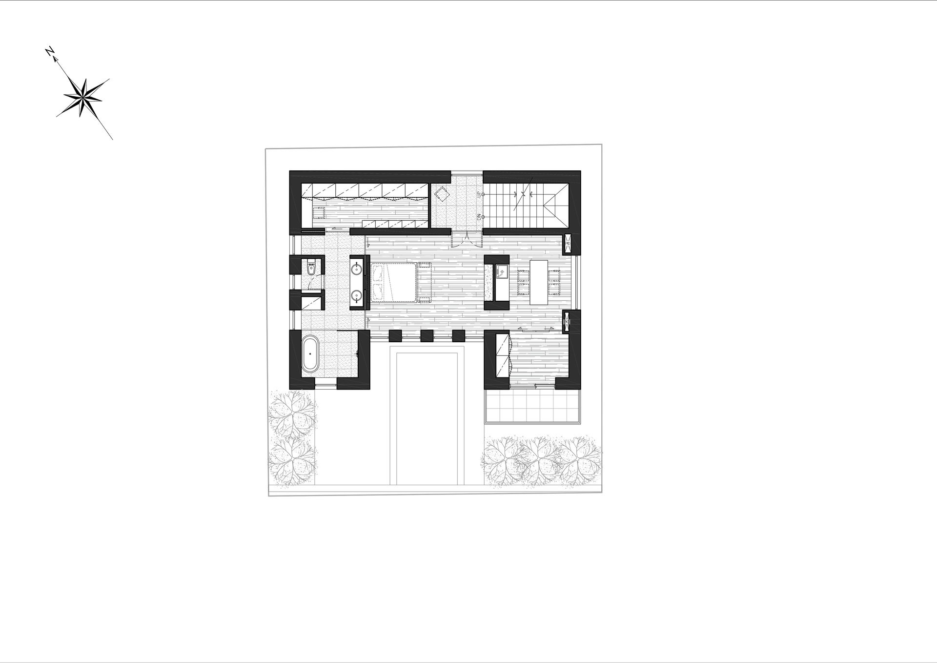
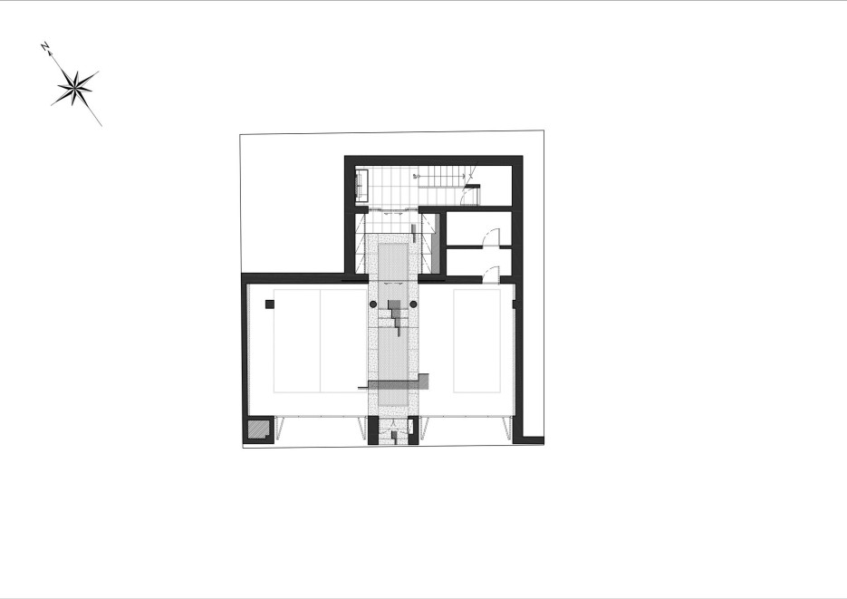
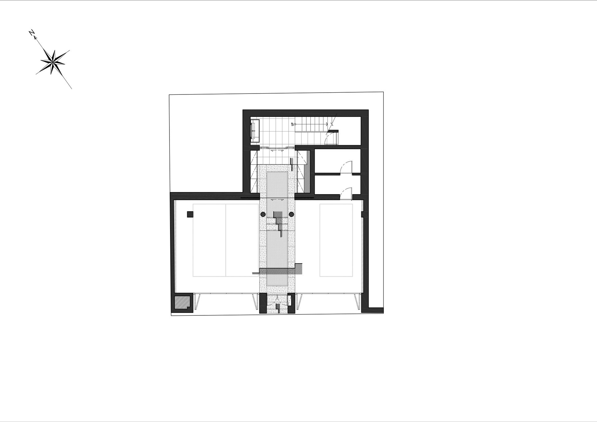
프로젝트 까사 카바나ㅣ백에이어소시에이츠 Casa Cabana (까사 카바나) 는 서울 근교에 위치한 개인 주택으로, 두 자녀를 둔 부부의 보금자리이다. 여행을 좋아하는 이들은 해외의 수많은 여행지와 호텔을 다니며 자신들이 원하는 집에 대한 아이디어를 축적해 왔다. 이들이 원하는 공간은 도심 속 휴양지와 같은 공간이 되어 여행을 다니는 듯한 느낌을 주어야 했다. Keywords 100Aassociates 100A 백에이어소시에이츠 백에이 안광일건축가 박솔하건축가 CASACABANA 까사 카바나 개인주택 도심속휴양지같은공간 부티크호텔 다양한소재와색감 벽돌을쌓으며만들어낸독특한패턴 건축주의개성 호텔의엔터테인먼트체험 주차장 자동차쇼룸 다이닝룸 수영장 자쿠지 벽천 100A associates는 설계에 앞서 그들만을 위한 부티크 호텔을 상상했다. 따라서 최소한의 요소로만 표현하는 것을 지향했던 기존 성향과는 달리 다양한 소재와 색감을 사용했다. 특히, 단순한 형태의 외관에 벽돌을 쌓으며 만들어낸 독특한 패턴은 자연과 조화를 이루면서도 건축주의 개성을 고스란히 드러낸다. 공간은 총 4개 층으로 구성된다. 호텔 리셉션처럼 연출된 지하 1층, 연회장과 같은 1층, 부부의 침실과 라운지 바가 있는 2층, 그리고 자녀들의 방이 있는 3층이다. 이러한 층별 구성은 마치 로비에 들어서서 호텔의 엔터테인먼트를 체험하고 객실에 머무는 것과 같은 느낌을 선사한다.공간에 진입하자마자 마주하게 되는 곳은 주차장이다. 입구에서 현관까지 향하는 길 양쪽에 위용을 드러내는 주차공간이 마련되어 있다. 집이 아닌 자동차 쇼룸처럼 보였으면 좋겠다는 클라이언트의 바람이 반영된 것이다. 계단을 한 층 올라 들어서게 되는 공간에는 더욱 다채로운 색상과 재료들이 적용되었다. 지인들을 초대하여 함께 식사할 수 있는 다이닝룸, 부부의 휴식을 위한 수영장, 자쿠지, 벽천 등은 이들의 생활을 더욱 극명하게 보여준다. 까사 카바나는 국내의 주거 형태에서는 좀처럼 볼 수 없는 공간 양식이다. 다소 생소하게 다가오기도 하지만, 휴식을 취할 수 있는 공간임을 직관적으로 느낄 수 있다. 고급스러운 호텔처럼 정돈된 공간이 주는 안락함은 건축주가 삶의 즐거움을 맛보며 에너지를 얻을 수 있는 원천이 될 것이다.CASA CABANAㅣ100A associates 2018 위 치 | 경기도 용인시 기흥구 서천동 Yongin-si, Gyeonggi-do면 적 | 108.39 ㎡외 벽 | 스페인 수입 벽돌 마감바 닥 | 타일, 석재, 원목 마루 마감 벽 | 테라코사하라, 도장, 벽돌, 타일 마감천 정 | 도장 마감창 호 | 시스템 창호설계ㆍ시공 | 백에이어소시에이츠 100A associates대표 건축가 | 안광일 Kwangil An, 박솔하 Solha Park글 | 백에이어소시에이츠 100A associates사진 | 김재윤 Jaeyoun Kim