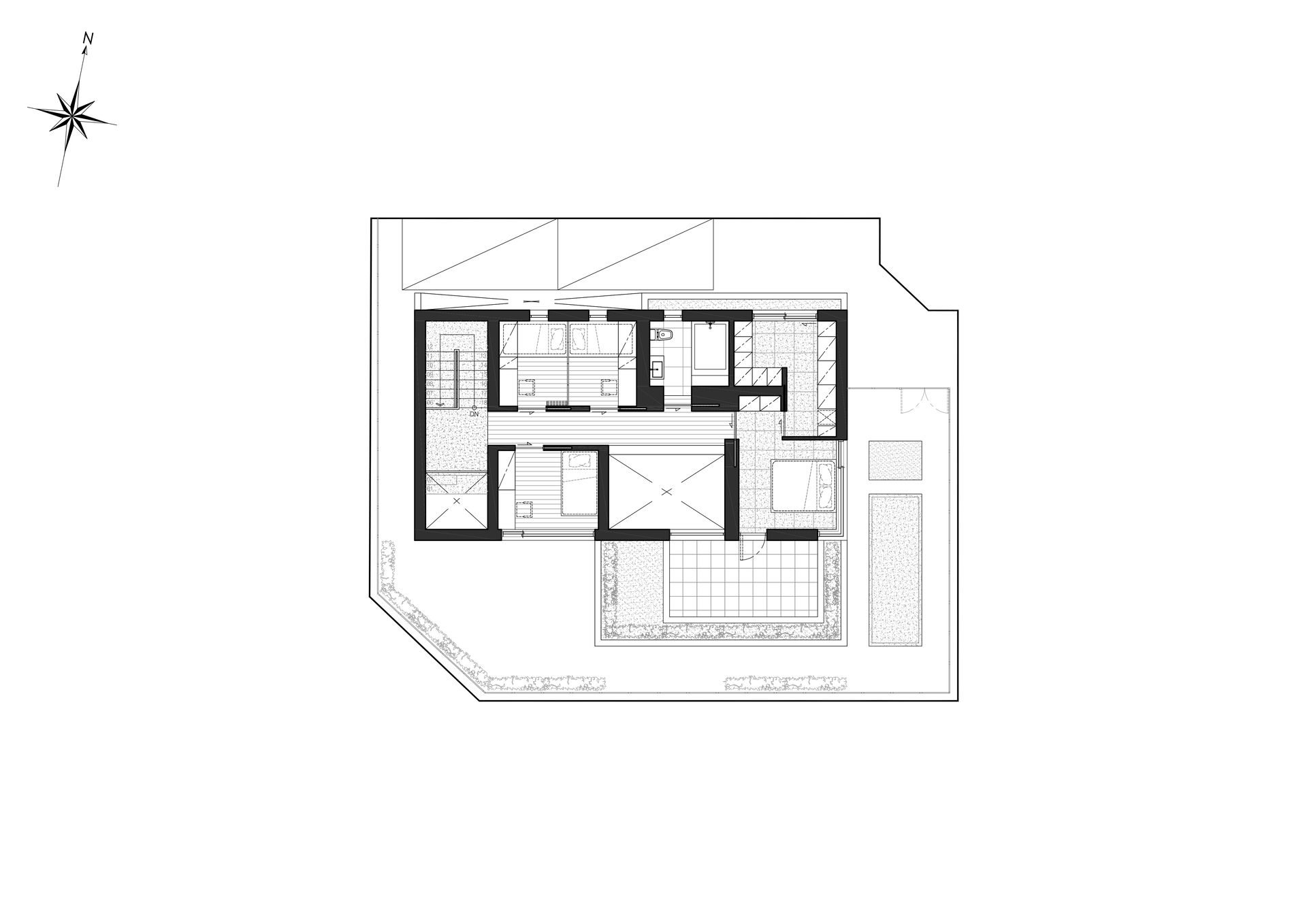
프로젝트 에세이 하우스ㅣ백에이어소시에이츠 우리들에게는 어렸을 적 가장 좋았던 순간의 기억이 존재한다. 건축주 부부는 그 순간을 어린 자녀들에게 남겨주고 싶다고 했다. 우리는 함께하는 시간, 아이들의 크고 작은 유희의 순간들이 이 공간 안에서 언제나, 어디서나, 매일 그리고 자유롭게 이루어지기를 바라며 가족의 모든 순간이 기록되어질 ESSAY HOUSE를 설계했다. Keywords 100Aassociates 100A 백에이어소시에이츠 백에이 안광일건축가 박솔하건축가 ESSAYHOUSE 에세이하우스 함께하는시간 유희의공간 담백한그릇 추억의공간 이 공간은 부모의 과거에 대한 기억, 현재의 기억 그리고 아이들이 성장하는 모든 순간의 기억이 기록될 수 있도록 기본에 충실하되 유동적으로 변화할 수 있는 공간으로 구축되었다. 평평한 주택 단지 내에 첫 얼굴로 보일 대지의 위치를 고려하여 건축의 형태는 단순하되 부드럽고 따뜻한 색감으로 이웃집들과 위화감 없이 어우러지게 했다. 또한 자연을 투영하되 불필요한 것들을 여과할 수 있도록 창을 배치하여 자연이 주는 활기를 실내로 들이고, 공간을 둘러싼 크고 작은 마당들은 실내와 연속성을 맺으며 아이들이 자유롭게 유희의 공간을 선택할 수 있도록 했다.우리는 ESSAY HOUSE를 계획하면서 이 공간이 그들의 시간과 추억을 담을 담백한 그릇이 되길 바랐다. 앞으로 이 곳에서 살아갈 그들에게, 이 공간이 추억이자 삶이 되길 바란다. ESSAY HOUSEㅣ100A associates 2020 위 치 | 충청남도 천안시 서북구 불당동 Cheonan-si, Chungcheongnam-do 면 적 | 201.61㎡외 벽 | 노출 콘크리트, 테라코사하라 마감바 닥 | 원목마루, 석재 마감 벽 | 벽지, 천연무늬목 마감천 정 | 도장 마감창 호 | 시스템 창호설계ㆍ시공 | 백에이어소시에이츠 100A associates대표 건축가 | 안광일 Kwangil An, 박솔하 Solha Park글 | 백에이어소시에이츠 100A associates사진 | 김재윤 Jaeyoun Kim