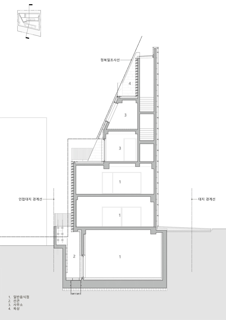
프로젝트 모노리스ㅣ스튜디오캔 건축사사무소 본 건물의 대지는 선릉로가 선정릉과 만나는 블럭의 끝자락에 위치한다. 대지 남측 코너부는 선릉로로 열린 도시의 뷰를 가지고 배면은 북측 선정릉 공원으로 열려있다. Keywords 스튜디오캔건축사사무소 STUDIOCANarchitects MONOLITH 모노리스 선적인변화 하나의단일체느낌 사선을정면커튼월에적용 반사 투명 인상적인표정 랜덤하게배치된작은창 포켓스페이스 역동적전망 손님초대 취미활동 사적인공간 높은층고 빛 선큰공간 역동적인계단구성 변화하는빛과풍경 재미있는공간 천창 쾌적함 동굴로들어가는입구 그림자 사선활용 시선과동선 대로변 박스형 건물들 사이에서 존재감을 부여하기 위해서, 우리는 선적인 변화가 있으면서도 하나의 단일체(Monolith) 느낌이 나는 건물을 만들고자 했다. 건물 배면의 정북일조높이 제한이 만드는 사선을 정면 커튼월에도 적용하여 단일체의 느낌을 강조하도록 하였다. 길을 걷다보면 눈에 띄는 건물 남측 코너부는 커튼월로 계획하여 선릉로를 향한 조망을 확보하였다. 선릉로에서 보이는 두 매스 사이의 코너창은 낮에는 도시풍경을 반사시키고 밤에는 내부공간을 투명하게 드러내며 인상적인 표정을 만든다. 기본적으로 수풀이 우거진 대지의 남측으로 액자처럼 커다란 프레임의 창을 두어 그림같은 풍경을 담았고, 배면의 테라스를 향해 통창과 슬라이딩창을 두어 개방적인 느낌을 주었다. 건물의 큰 창들이 배면과 측면의 자연을 향해 열려있다보니 정면은 상대적으로 꼭 필요한 위치에 작은 환기용 창을 내었다. 랜덤하게 배치된 작은 창들은 하나의 덩어리 컨셉인 '모노리스'를 강조하며 자유로운 느낌을 부여한다.건물의 배면 대부분은 정북일조 높이제한의 영향을 받아서, 3층부터 사용가능한 건물의 볼륨이 매우 제한적이다. 건축주는 최대한의 외부공간을 확보하기를 바랐고, 결과적으로 3층 계단의 상부와 승강기의 상부도 각각 3층의 베란다와 옥상에서 계단으로 연결하여 포켓스페이스로 활용이 가능하도록 하였다. 각층의 외부공간들은 동선을 따라 다니면서 보이는 전망들은 매우 역동적이며, 건물의 최상부는 선정릉과 선릉로를 동시에 전망할 수 있는 인상적인 곳이 되었다. 지하층은 손님초대와 개인의 취미활동을 담는 사적인 공간으로 높은 층고를 확보하고 빛을 깊게 드리울 수 있는 선큰공간을 두었다. 내부의 직통 계단은 외부 공간만큼이나 역동적인 구성으로 옥상까지 이어지도록 하였다. 계단참마다 다양한 크기의 창을 두어 이동함에 따라 변화하는 빛과 풍경을 즐길 수 있는 재미있는 공간으로 계획하였고, 옥탑으로 향하는 계단은 전면 천창을 계획하여 쾌적함을 배가하였다. 건물의 입구는 '모노리스'라는 조형 컨셉을 고려하여, 돌출된 캐노피나 장식적인 요소를 없애고, 동굴로 들어가는 입구처럼 그림자를 드리우고 사선을 활용하여 시선과 동선을 자연스럽게 내부로 끌어들일 수 있도록 하였다.모노리스 MONOLITHㅣSTUDIO CAN Architects 2024위 치 | 서울시 강남구 삼성동 Samseong-dong, Gangnam-gu, Seoul대지면적 | 164.30㎡건축면적 | 81.63㎡주요구조 | 철근콘크리트외 장 | 석재, 저철분 로이복층유리 커튼월내 장 | 민무늬 노출 콘크리트 외 다수디자인 | ㈜스튜디오캔 건축사사무소 STUDIO CAN Architects책임 건축가 | 나애나 Aena Na, 최정석 Jeongseok Choi디자인팀 | 김민주 Minju Kim글 | ㈜스튜디오캔 건축사사무소 STUDIO CAN Architects사진 | 윤동규 Donggyu Yoon